Etapy realizacji

1. Dostarczyć projekt budowlany budynku (rzuty kondygnacji: piwnicy, parteru, piętra/ poddasza) oraz przekroje poprzeczne droga mailową na adres: biuro@oxyvent.pl lub tradycyjnie do siedziby firmy. Mogą to być zarówno skany dokumentów jak i zdjęcia wykonane smartphonem.

Prześlij swoje pliki do wstępnego projektu instalacji

2. Wykonamy wstępny projekt instalacji, dokonamy obliczeń bilansu zapotrzebowania na powietrze. Odpowiednio zaprojektowany system wentylacji mechanicznej z odzyskiem ciepła to przede wszystkim:

  • wysoka sprawność energetyczna odzysku ciepła (brak strat na przejściach kanałów wentylacyjnych),
  • brak niedogodności związanych z hałasem związanym z przepływem powietrza w kanałach (na przyłączach rekuperatora używamy specjalistycznych nowoczesnych kanałów wentylacyjnych w otulinie MASTERFEX oraz SONODEC CLASSIC. Przewody te posiadają mikroperforację, która działa jak tłumik akustyczny,
  • gwarancja szczelności instalacji a więc pewność dopływu świeżego powietrza tylko z zewnątrz z najbardziej zoptymalizowanego punktu jego poboru a więc odpowiedniego i bezpiecznego umiejscowienia czerpni (zachowanie odpowiednich odległości od kanałów wywiewnych, kominów spalinowych, parkingów z dużym natężeniem ruchu itp.). Instalacje wykonujemy nie tylko w oparciu o własne doświadczenie ale przede wszystkim w zgodzie z wytycznymi Stowarzyszenia Polska Wentylacja oraz normami rozporządzeniu Ministra Infrastruktury z dnia 12 kwietnia 2002 r. w sprawie warunków technicznych, jakim powinny odpowiadać budynki i ich usytuowanie, obowiązujące od 31 grudnia 2020 roku oraz PN-83/B-03430/Az3. Polskie normy ściśle określają sytuowanie czerpni. Lokalizacja czerpni i wyrzutni powinna być zgodna z Dz.U. Nr 75 Rozporządzenia Ministra Infrastruktury w sprawie warunków technicznych, jakim powinny odpowiadać budynki i ich usytuowanie z dnia 12.02.2002 z późniejszymi zmianami w Dz. U. nr 56 z dnia 12 marca 2009 rozdział 6 Wentylacja i klimatyzacja. Wentylacja i klimatyzacja powinny zapewniać odpowiednią jakość środowiska wewnętrznego, w tym wielkość wymiany powietrza, jego czystość, temperaturę, wilgotność względną, prędkość ruchu w pomieszczeniu, przy zachowaniu przepisów odrębnych i wymagań Polskich Norm dotyczących wentylacji, a także warunków bezpieczeństwa pożarowego i wymagań akustycznych określonych w rozporządzeniu.
    Czerpnie powietrza w instalacjach wentylacji i klimatyzacji powinny być zabezpieczone przed opadami atmosferycznymi i działaniem wiatru oraz być zlokalizowane w sposób umożliwiający pobieranie w danych warunkach jak najczystszego powietrza zarówno w okresie letnim jak i zimowym, przy czym w okresie letnim, jak najchłodniejszego powietrza. Czerpni powietrza nie należy lokalizować w miejscach, w których istnieje niebezpieczeństwo napływu powietrza wywiewanego z wyrzutni. Czerpnie powietrza sytuowane na poziomie terenu lub na ścianie dwóch najniższych kondygnacji nadziemnych budynku powinny znajdować się w odległości co najmniej 8 m w rzucie poziomym od ulic i zgrupowania miejsc postojowych dla więcej niż 20 samochodów, miejsc gromadzenia odpadów stałych, wywiewek kanalizacyjnych oraz innych źródeł zanieczyszczenia powietrza. Odległość dolnej krawędzi otworu wlotowego czerpni od poziomu terenu powinna wynosić co najmniej 2 m. Dopuszcza się sytuowanie wyrzutni powietrza w ścianie budynku, pod warunkiem, że powietrze wywiewane nie zawiera uciążliwych zapachów oraz zanieczyszczeń szkodliwych dla zdrowia. Dodatkowo przeciwległa ściana sąsiedniego budynku z oknami znajduje się w odległości co najmniej 10 m lub bez okien w odległości co najmniej 8 m, okna znajdujące się w tej samej ścianie są oddalone w poziomie od wyrzutni co najmniej 3 m, a poniżej lub powyżej wyrzutni – co najmniej 2 m. Czerpnia powietrza, usytuowana w tej samej ścianie budynku, znajduje się poniżej lub na tym samym poziomie co wyrzutnia, w odległości co najmniej 1,5 m.

Ogólną zasadą działania wentylacji mechanicznej wraz z odzyskiem ciepła dla budownictwa jednorodzinnego jest taka, że powietrze pobierane jest z zewnątrz przez tzw. czerpnię i dostarczane za pomocą przewodów wentylacyjnych najczęściej o średnicy 200mm do rekuperatora który za pomocą wentylatorów wymusza nawiew. Zaleceniami specjalistów przy tym aspekcie są takie, aby średnica samego kanału wlotowego czerpni przy zasysaniu była o rozmiar większa od kanału przyłączeniowego i tranzytowego do samego rekuperatora w celu uzyskania lepszej aerodynamiki przepływu gazów, a więc w tym przypadku zalecaną średnicą kanału ssącego czerpni będzie 250mm. Przyłącza te wykonujemy z trwałych stalowych ocynkowanych rur SPIRO, które dodatkowo są wytłumiane i ocieplane specjalną wełną mineralną w celu uniknięcia tworzenia się skroplin. Kolejno powietrze z zewnątrz przechodzące w rekuperatorze przez wymiennik, wymienia ciepło z powietrzem wyciąganym z pomieszczeń. Po przejściu przez centralę wentylacyjną powietrze jest dostarczane przez sieć przewodów nawiewnych do pomieszczeń użytkowych, takich jak: salon, sypialnie, pokoje dzienne, gabinety. Natomiast dla zrównoważonego bilansu powietrza w typowym budynku mieszkalnym, powietrze wyciągane jest z takich pomieszczeń sanitarnych jak: pralnia, łazienki, kuchnia, toalety, spiżarnie a także ganek, garderoby, wiatrołapy, częściowo hole i korytarze. Ruch powietrza w budynku odbywa się więc od pomieszczeń nawiewanych do pomieszczeń wywiewanych. Dla zapewnienia prawidłowej cyrkulacji nie wolno zapomnieć również o pozostawieniu centymetrowej szczeliny pod drzwiami lub zamontowaniu specjalnych kratek lub otworów w dolnej części drzwi. Dla prawidłowej, efektywnej, sprawnej instalacji wentylacji w tym systemie, bardzo istotnym jest również umiejscowienie anemostatów nawiewno- wywiewnych w możliwie najdalszym punkcie od drzwi wewnętrznych, w ten sposób aby zapewnić powietrzu jak najdłuższą trasę jego przepływu w celu uzyskania wentylowania całości kubatury pomieszczeń. W przypadku mocowania anemostatów sufitowych, idealnym miejscem wydają się być okolice okien lub drzwi zewnętrznych. Tak zaprojektowany system wentylacji zapewni odpowiedni kierunek przepływu powietrza od pomieszczeń o mniejszym zanieczyszczeniu do pomieszczeń o większym stopniu zanieczyszczenia powietrza. Przepływ powietrza wentylacyjnego w budynkach mieszkalnych powinien odbywać się więc z pokoi, salonu do pomieszczeń jak kuchnia, łazienka i innych higieniczno-sanitarnych.
Zużyte, zanieczyszczone powietrze usuwane anemostatami wywiewnymi trafiają kanałami wentylacyjnymi do rekuperatora, gdzie w wymienniku ciepła oddaje swoją energię cieplną świeżemu, czerpanemu powietrzu. Następnie przez przewody wentylacyjne i wyrzutnię jest usuwane na zewnątrz budynku.
Dla prawidłowego wyliczenia bilansu na zapotrzebowanie w powietrze dla budynku mieszkalnego niezbędne jest wyliczenie nie tylko kubatury pomieszczeń ale również intensywności wymiany, liczonej dla różnych pomieszczeń odrębnie zgodnie z polskimi normami.

Vn = Vw, gdzie

Vn – strumień objętości powietrza wentylacyjnego nawiewanego, m3/h
Vw – strumień objętości powietrza wentylacyjnego wywiewanego, m3/h

Ponad to, pod uwagę bierze się także, wilgoć i emisję zanieczyszczeń, czyli czynniki powodujące zmianę parametrów powietrza w pomieszczeniu.

Obliczeń ilości powietrza wentylacyjnego nawiewanego można dokonać na podstawie:

– ilości osób w pomieszczeniu względem wzoru:

Vn = n ˣ Vi, [ m³/h ], gdzie

n – ilość osób w pomieszczeniu (zasadą jest przyjmowanie największej z wyliczonych wartości jako czynników zakłócających jakość powietrza)

Vi – ilość powietrza przypadająca na jedną osobę w [ m³/h ], wynoszącą w przeliczeniu od 20 do 60 m³/h. Wg przyjętych norm ilość powietrza wentylacyjnego ze względów higienicznych, dla pomieszczeń do stałego i czasowego pobytu ludzi wynosi 20 m³/h.

– wymaganej krotności wymian względem wzoru (jest to liczba, wskazująca ile razy w ciągu godziny zostanie usunięta cała objętość powietrza z pomieszczenia i zastąpiona takim samym strumieniem powietrza zewnętrznego):

Vn = n ˣ Vp, [ m³/h ], gdzie

n- krotność wymian, minimalna krotność wymian w klasycznym budynku wynosi 0,5-0,8 (1) h-1

Vp- kubatura pomieszczenia w m³

Strumień objętości powietrza wentylacyjnego wywiewanego, m3/h określają normy
PN-83/B-03430/Az3:2000 i jest rozumiany przez sumę strumieni powietrza usuwanego z pomieszczeń. Strumienie te, niezależnie od rodzaju wentylacji powinny wynosić co najmniej:

– dla kuchni z oknem zewnętrznym, wyposażonej w kuchnię gazową lub węgłową – 70m3/h;

– dla kuchni z oknem zewnętrznym, wyposażonej w kuchnią elektryczną:

  • w mieszkaniu do 3 osób – 30m3/h;
  • w mieszkaniu dla więcej niż 3 osób – 50m3/h;

– dla kuchni bez okna zewnętrznego lub dla wnęki kuchennej, wyposażonej w kuchnię elektryczną – 50m3/h;

– dla łazienki (z ustępem lub bez) – 50m3/h;

– dla oddzielnego ustępu – 30m3/h;

– dla pomocniczego pomieszczenia bezokiennego – 15m3/h.

Wentylacja garderoby/ spiżarni, pomieszczeń bezokiennych

W każdym jednym komfortowym domu czy też mieszkaniu niezbędne jest miejsce do przechowywania różnego rodzaju przedmiotów. Realizowanie swoich pasji, hobby nierzadko wymaga magazynowania: wędek, nart, deski snowboardowej, namiotu, śpiworów, obuwia na różne pory roku, ubioru i wielu innych rzeczy. Idealnie do tego celu nadają się małe składziki, najczęściej są to niewielkie pomieszczenia bezokienne wygospodarowane w zakamarkach domu jak chociażby wolne przestrzenie pod schodami, wnęki, większe pawlacze itp.

Podobnie spiżarnia, czy garderoba zazwyczaj są odrębnymi pomieszczeniami, do których zaglądamy na chwilę, więc najczęściej albo nie planujemy w nich okna lub uniemożliwia to nam po prostu sama architektura. Aby zapewnić odpowiednią jakość powietrza w tych pomieszczeniach, a więc właściwe warunki do przechowywania tam zgromadzonych produktów żywnościowych takich jak konfitury, warzywa, napoje, przetwory czy też odzież i inne przedmioty w garderobie, należy zapewnić im właściwą wentylację. W przeciwnym razie, powietrze w takich pomieszczeniach nie będzie cyrkulować i będzie w nich zalegać wilgoć co w konsekwencji doprowadzi do powstawania stęchlizny. Tak więc, ubrania zamiast pozostawać w garderobie świeżymi, gotowymi do codziennego użytku, będą nie tylko o nieprzyjemnym zapachu ale również i w dotyku. Natomiast przechowywana żywność w spiżarni, będzie podatna przede wszystkim na przedwczesne przeterminowanie do spożycia. Zachodzące niekorzystne zjawiska w przypadku braku zapewnienia odpowiedniej wentylacji w tych pomieszczeniach, będą szczególnie niebezpieczne, w sytuacji, w której pomieszczenia takie będą słabiej ogrzewane niż pozostała część domu. Ryzyko kondensacji pary wodnej i zawilgocenia nie tylko składowanych tam rzeczy ale również struktury budynku będzie niemal pewne. Zalegająca  zaś wilgoć i brak dostępu światła stworzy bardzo dogodne warunki do rozwoju grzybów i pleśni.

Wentylacja naturalna pomieszczeń bezokiennych

Aby dobrze poznać zjawisko jakimi rządzi się poprawnie zaprojektowana i wykonana wentylacja mechaniczna nawiewno- wywiewna, należy znać dokładne zasady działania naturalnej wentylacji grawitacyjnej. Zgodnie z wytycznymi i obowiązującymi normami prawa, pomieszczenia bez okien, a więc garderoby, składziki, magazynki i wszelkie tego typu schowki, muszą być podłączone do osobnych kanałów wentylacyjnych, które umożliwią usunięcie zanieczyszczonego powietrza. Każdy kanał powinien umożliwić przepływ 15 m3 powietrza w ciągu godziny. Tyle też, powietrza musi dostać się do tych pomieszczeń.

Powietrze wędruje do garderoby czy składziku z innych pomieszczeń tzw. „czystych” – a więc z pokoi, salonu, gabinetu w których znajduje się nawiew świeżego powietrza zewnętrznego przez przedpokój bądź korytarze będące w tej roli pomieszczeniem buforowym. Aby mogło jednak się tak stać, to przede wszystkim nawiew powietrza musi być sprawny i odpowiednio wydajny w stosunku do kubatury pomieszczenia. W pokojach ze szczelnymi oknami koniecznie muszą być zamontowane nawiewniki okienne lub ścienne nawietrzaki.

Kolejnym istotnym elementem mającym wpływ na efektywność wentylowania wspomnianych pomieszczeń są drzwi wewnętrzne, gdyż w przypadku braku szczeliny pod nimi, lub z braku w nich odpowiednich otworów przepływowych- często stanowią one barierę uniemożliwiającą przepływ powietrza, gdyż są one po prostu zbyt szczelne. Drzwi do pomieszczenia, w którym nie ma okien powinny mieć w dolnej części wstawioną kratkę lub inne otwory (na przykład metalowe tuleje) zapewniające przepływ powietrza. Warunkiem jest aby powierzchnia tych otworów miała 200 cm2. Drzwi można również ewentualnie po prostu podciąć pozostawiając szczelinę o wysokości 2,5cm pomiędzy skrzydłem a podłogą. W pozostałych drzwiach pomiędzy pokojami, z których napływa powietrze a przedpokojem lub korytarzem należy także zapewnić przepływ. Te drzwi także można podciąć, wystarczy o 1cm, tak aby szczelina miała przekrój 80cm2.

W samej garderobie należy przewidzieć takie rozmieszczenie regałów, aby nie zasłaniać nimi kratki wentylacyjnej połączonej z kanałem wywiewnym. Dlatego warto na projekcie domu sprawdzić, czy po umeblowaniu nie będzie kolizji.

Kratkę umieszcza się w górnej części pomieszczenia. Ważne, aby jej górna krawędź nie była niżej niż 15cm od sufitu. Wielkość kratki, a właściwie powierzchnię otworów w kratce, należy dobrać tak, aby nie była ona mniejsza od powierzchni przekroju kanału wentylacyjnego, do którego jest podłączona. Kanał zaś powinien mieć wymiary nie mniejsze niż 14x14cm lub średnicę 15cm, jeśli jest okrągły.

Wentylacja mechaniczna pomieszczeń bezokiennych (spiżarnia, składzik)

Jeżeli w budynku jest przewidziana wentylacja mechaniczna, wywiewna lub nawiewno-wywiewna, pomieszczenia bez okien również muszą być wentylowane. W każdym z nich musi być umieszczona kratka wywiewna lub anemostat wyciągowy. Zasady przepływu powietrza pomiędzy pomieszczeniami są identyczne jak opisane powyżej dla wentylacji grawitacyjnej. Jedyną różnicą jest sposób nawiewu i wywiewu powietrza do i z budynku. W przypadku zastosowania wentylacji nawiewno-wywiewnej, przepływ powietrza do budynku wymusza się po przez wentylator nawiewny czerpnią zewnętrzną, natomiast zużyte powietrze usuwa się po przez wentylator wyciągowy wyrzutnią umieszczoną na elewacji bądź w szczycie dachu. W przypadku zastosowania centrali wentylacyjnej z odzyskiem ciepła (rekuperatora), pełni on obie funkcje jednocześnie a dodatkowo odzyskuje ciepło z zużytego powietrza. Stosuje się wtedy szczelne okna, a nawiew jest zapewniony przez anemostaty zamontowane na zakończeniu kanałów nawiewnych w pokojach.

Uwaga na błędy

Ponieważ w praktyce dość często się zdarza, że projektanci nie przewidują wentylowania pomieszczeń bezokiennych, warto zwrócić uwagę czy w projekcie jest to przewidziane. Jeżeli nie, należy nanieść stosowną poprawkę do projektu, gdyż takie rozwiązanie jest niezgodne z obowiązującymi przepisami budowlanymi.

Próby poprawienia wentylacji już po zakończeniu budowy mogą się okazać bardzo skomplikowane i pociągać za sobą znaczne koszty lub być czasami niemożliwymi w wykonaniu. Zdarza się, że gdy w pomieszczeniu bez okna nie ma kanału wywiewnego, użytkownicy lub wykonawcy próbują usprawnić wentylację wykonując otwory w dolnej i górnej części drzwi, co oczywiście w praktyce nie przyniesie żadnych wymiernych rezultatów. Również próba podłączenia takiego pomieszczenia do innego, oddalonego kanału za pomocą poziomej rury nie zda egzaminu, ponieważ kanały wentylacyjne nie mogą być odchylone od pionu o więcej niż 30 stopni, gdyż nie będą działały. Poziome kanały wentylacyjne tym bardziej nie zapewnią przepływu powietrza. Ponadto należy pamiętać, że nie wolno podłączać do jednego kanału pomieszczeń o różnym przeznaczeniu.

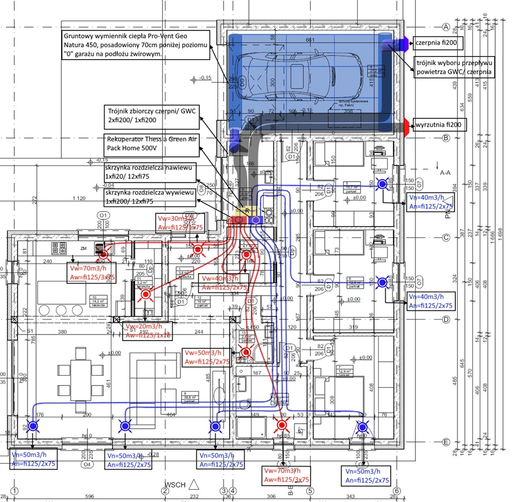
Poniżej umieszczamy przykładowy prawidłowo wykonany bilans powietrza sporządzony na potrzeby inwestora.

Bilans został wykonany dla budynku jednorodzinnego o powierzchni całkowitej 285 m² na potrzeby wykonania instalacji wentylacji mechanicznej z odzyskiem ciepła. Dla garażu oraz kotłowni przewidziano wentylację grawitacyjną. Przedstawiając wyniki naszej pracy, chcielibyśmy wyartykułować jednocześnie możliwe przyczyny otrzymania różnych wyników bilansu w ramach tego samego budynku, z czym wielokrotnie mieliśmy okazję się spotkać, kiedy inwestor dysponował kilkoma innymi ofertami nawet ze skrajnie różnymi zapotrzebowaniami na świeże nawiewane powietrze. Zbytnie przewymiarowanie, zawyżenie bilansu powietrza, będzie generować przede wszystkim znacznie większe nakłady finansowe przed inwestycją jak również i po niej. Konieczność poniesienia większych nakładów finansowych będzie podyktowana w pierwszej kolejności zakupem wydajniejszej centrali wentylacyjnej (rekuperatora) a ten może kosztować nawet dwukrotnie drożej w stosunku do wymaganego i w zupełności wystarczającego. Natomiast już w trakcie eksploatacji, możemy spodziewać się zwiększonych kosztów związanych z poborem energii, koniecznością zakupu droższych filtrów, droższych usług serwisowania po okresie gwarancji. Analizując kwestię błędnego wyliczenia bilansu na zapotrzebowanie w świeże powietrze, to z punktu widzenia użytkowania, groźniejszą, będzie sytuacja odwrotna- kiedy będziemy mieli do czynienia ze znacznie zaniżoną wydajnością instalacji wentylacyjnej na zapotrzebowanie świeżego, czystego powietrza. Początkowo, i owszem, finansowo odczujemy to prawdopodobnie o wiele lżej, gdyż naturalnie siłą rzeczy całość instalacji będzie kosztować o wile mniej w porównaniu do wydajniejszej jaka prawidłowo powinna być wbudowana (droższe przewody wentylacyjne, centrala itd.), ale w konsekwencji będzie to skutkować w pierwszym rzędzie źle funkcjonującą wentylacją w budynku, zagrażającą nie tylko budynkowi, ale również jego mieszkańcom. Wątpliwa będzie też sprawność energetyczna z odzysku ciepła, a z punktu widzenia formalno- prawnego prawa budowlanego, należy się liczyć nawet z konsekwencją odmowy odbioru budynku do użytkowania przez nadzór budowlany.

Zaprojektowanie kompletnego systemu wentylacji mechanicznej z odzyskiem ciepła, bezwzględnie wiąże się w pierwszej kolejności z prawidłowo wyliczonym zrównoważonym bilansem na zapotrzebowanie powietrza w budynku.

Jakie są zatem możliwe przyczyny otrzymania różnych, nawet skrajnych wyników na zapotrzebowanie powietrza w ramach tego samego budynku? Poza taką, wydawałoby się na pozór tylko prozaiczną dosyć przyczyną, która nigdy nie powinna mieć miejsca, ale jak pokazuje nie tylko nasze doświadczenie, ale również i innych firm instalatorskich w ramach branży, taką abstrakcją jak kalkulowanie bilansu na tzw. „oko” ma dosyć często niestety jednak miejsce. Tak więc, w przypadku otrzymania oferty na instalację wentylacji mechanicznej z odzyskiem ciepła lub bez, bez konkretnych wyliczeń, zwłaszcza kiedy nie będzie ona również istniała w projekcie budowlanym, należy podejść do niej z dużą dozą ostrożności.

Opierając się z kolei na wytycznych oraz ściśle określonych wzorach jakie zostały przedstawione powyżej do prawidłowego obliczenia zapotrzebowania powietrza w ramach danego budynku, to ze względu na: różną metodologię oraz przyjęte dane statystyczne, uzyskane wyniki również mogą od siebie odbiegać, ale z tą różnicą, że nie powinny one zmieniać przydziału co do danej centrali wentylacyjnej. Bazując na przykładzie drugiego wzoru tzn. n- krotności wymian, który najczęściej stosowany jest w praktyce i niestety zazwyczaj z całkowitym pominięciem metody bazującej na ilości n- osób, to w niektórych przypadkach bilans na zapotrzebowanie w powietrze może być niewystarczający, szczególnie dla pomieszczeń o zwiększonym skupisku ludzi.
Prezentowany przez nas bilans powietrza, został opracowany na metodzie n- krotności wymian, ale również nie zabrakło w nim danych niezbędnych do porównania dla metody n- osób. Wynik jaki otrzymaliśmy dla bilansu zrównoważonego to 410 m³/h.

Wartość ta, w zupełności zaspokoi w dostęp do świeżego powietrza 4- 6 osobową rodzinę, dla pomieszczeń o przedstawionej kubaturze. Dla statystycznego porównania w ostatniej kolumnie przedstawiliśmy z kolei sposób wyliczenia zapotrzebowania na powietrze liczonego względem ilości osób w danym pomieszczeniu. Tutaj wartości opierają się na iloczynie szacunkowej ilości osób w danym pomieszczeniu oraz na przyjętej wartości powietrza przypadającej na osobę wg obowiązujących norm. Polskie wytyczne i normy mówią o przyjmowaniu wartości do symulacji tych możliwie największych, ale dotyczą one tylko i wyłącznie ilości osób. Jeżeli chodzi o przypadającą ilość powietrza na osobę wydychaną na jedną godzinę, to domyślną wartością wg przyjętych norm dla budynków jednorodzinnych pozostaje 20 m³/h a nie dowolna z zakresu od 20 do 70 m³/h. Tak więc samo przyjęcie tylko zbytniej ilości osób dla danego pomieszczenia może generować znacznie większe zapotrzebowanie na wentylowane powietrze aniżeli jest to wymagane. W sytuacji, kiedy dojdzie jeszcze do tego błędna interpretacja wytycznych co do ilości powietrza przypadającej na 1 osobę i zostanie wybrana inna wartość z zakresu niż owe 20 m³/h, to może to skutkować nawet skrajnie innym bilansem, znacznie zawyżonym aniżeli byłoby to wymagane. Nasza praktyka pokazuje, że należy ostrożnie mierzyć wg szacunkowych norm przyjętych wg wzoru ilości osób w danym pomieszczeniu, ale nie należy jej pomijać. Dla tego też, nasi specjaliści OXYVENT.PL zawsze po uzgodnieniach z inwestorem biorą te wytyczne pod uwagę. Wg naszej najlepszej wiedzy i praktyki, prawidłowe wyliczenia wg obu przyjętych wzorów pozostają zbieżne ze sobą dla pomieszczeń jak: sypialnie, pokoje, gabinety. Dla przykładu weźmy pod uwagę pozycję z tabeli: pokój nr 5 na piętrze, dla którego wartość powietrza nawiewanego liczona wg wzoru krotności wymian wynosi 39,5 m³/h. A gdyby skonfrontować te wyliczenie podług wzoru liczby osób, to przy założeniu jak w tabeli- dla dwóch osób wartość ta wyniósłby 40 m³/h. Sytuacja nieco trudniej przedstawia się dla pomieszczeń, w których mogą występować okresowo większe skupiska ludzi jak salon czy jadalnia. Tutaj przyjmując większą liczbę osób jak grono domowników, a co może mieć często miejsce w sytuacji przyjmowania np. gości, to wartości otrzymane tymi dwiema metodami w praktyce zawsze będą od siebie różne, z tą różnicą, że przyjmując większą ilość osób dla metodologii wyliczenia zapotrzebowania powietrza liczonego wg drugiego wzoru, otrzymana wartość będzie znacznie większa, ale z pewnością nie powinna być ona skrajnie inna a jako wynik dla całego bilansu nie powinna wykraczać poza zakres zapotrzebowania na powietrze przyjętego względem metodologii wyliczenia bilansu względem wzoru pierwszego n- krotności wymian. Opierając się na przedstawionym przykładzie, dla bezpieczeństwa, ale z rozsądkiem, przyjmujemy zatem większą ilość osób dla jadalni jako 4 os oraz jednocześnie połączonego z nią salonu dla 6 os. Wynik jaki otrzymujemy na zapotrzebowanie w powietrze dla jadalni względem liczby osób w pomieszczeniu to 80 m³/h w stosunku do 45,3 m³/h względem n- krotności wymian, oraz dla salonu 120 m³/h w stosunku do 71,8 m³/h. Całkowity bilans na zapotrzebowanie w powietrze wyniósłby przy takim układzie z 410 m³/h na 492,9 m³/h. Należy przy tym również uwzględnić, że nie zawsze jednocześnie w innych pomieszczeniach będą przebywać domownicy. Tak więc, dysponując taką wiedzą i wyliczeniami, dokonamy wyboru centrali wentylacyjnej dla inwestora na poziomie 500 m³/h, który zapewni komfort nie tylko użytkownikom, ale również umożliwi przełączenie w tryb „impreza” w przypadku przyjmowania gości.

Wentylacja pomieszczeń kotłowni.
W pomieszczeniu z paleniskami na paliwo stałe, płynne lub z urządzeniami gazowymi pobierającymi powietrze do spalania z pomieszczenia i z grawitacyjnym odprowadzeniem spalin przewodem od urządzenia stosowanie mechanicznej wentylacji wyciągowej jest zabronione. Powyższego przepisu nie stosuje się do pomieszczeń, w których zastosowano wentylację nawiewno-wywiewną zrównoważoną lub nadciśnieniową. Nowoczesne kotły kondensacyjne pobierają powietrze z zewnątrz. W kotłowniach z zainstalowanymi kotłami gazowymi z zamkniętą komorą spalania teoretycznie nie musimy spełniać tego przepisu. Urządzenia gazowe z zamkniętą komorą spalania (w tym kondensacyjne kotły gazowe), przez co rozumie się urządzenia typu C, mogą być instalowane w pomieszczeniach mieszkalnych, niezależnie od rodzaju występującej w nich wentylacji, pod warunkiem zastosowania koncentrycznych przewodów powietrzno- spalinowych. Z uwagi jednak na ograniczone zaufanie co do stosowania wentylacji mechanicznej jednocześnie w kotłowni, doradzamy stosowanie w tych pomieszczeniach wentylacji tradycyjnej- grawitacyjnej.

3. Wizja lokalna na budowie doprecyzowanie szczegółów z inwestorem i podpisanie umowy. W zależności od stopnia zaawansowania robót budowlanych, można będzie ustalić docelowy zakres prac, przebiegu tras kanałów wentylacyjnych z bezkolizyjnym ich przejściem z innymi instalacjami (z uwagi na znaczną średnicę kanałów wentylacyjnych a co się z tym również wiąże, ograniczonymi możliwościami co do jej poprowadzenia z obejściem innych instalacji jak: elektryczna, wodno- kanalizacyjna warto położyć tę instalację jako pierwszą, gdyż zdecydowanie łatwiej będzie obejść instalację wentylacyjną kablem czy rurą instalacji wodnej aniżeli odwrotnie).

Ogólnie można przyjąć, że warto zastanowić się nad instalacją wentylacji mechanicznej na w miarę wczesnym etapie budowy, a najlepiej jeszcze na etapie samego projektu, gdyż zaoszczędzić możemy w ten sposób chociażby na pracach związanych z odwiertami przez stropy a kanały wentylacyjne możemy schować bezpośrednio w zalewanym stropie zarówno monolitycznym jak i TERRIVA. Ponad to, zaoszczędzić możemy na budowie kosztownych kominów wentylacyjnych, wykonać możemy przepust pod ławą fundamentową dla gruntowego wymiennika ciepła a przede wszystkim przygotować możemy pomieszczenie na rekuperator i kanały wentylacyjne wraz z podprowadzeniem zasilania i odpływu skroplin dla centrali.

Usytuowanie budynku względem innych obiektów jak i względem stron Świata (północ, południe, wschód, zachód) będzie miało również swój wpływ na umiejscowienie punkt poboru świeżego powietrza (czerpni) oraz wywiewu zużytego powietrza (wyrzutni). W przypadku budynku już wolno stojącego zostaną Inwestorowi wskazane miejsca umiejscowienia anemostatów nawiewnych oraz wywiewnych a więc tym samym zaznaczone miejsca przyszłych odwiertów specjalną odwiertnicą z diamentową koronką. Jeżeli chodzi o umiejscowienie samego serca wentylacji mechanicznej czyli rekuperatora, to najlepiej do tego nadają się: w przypadku budynku nie podpiwniczonego pomieszczenie gospodarcze (kotłownia, garaż) a w przypadku budynku z piwnicą- sama piwnica, gdyż takie usytuowanie pozwoli na podłączenie dodatkowo gruntowego wymiennika ciepła GWC co w przypadku poddasza raczej mijałoby się z celem. Jeśli chodzi o poddasze, to należy pamiętać, że muszą tam panować temperatury dodatnie nie mniejsze jak 5°C, a więc poddasze musi albo być ocieplone, albo należy zabudować samą centralę wentylacyjną z jednoczesnym zaizolowaniem przewodów wentylacyjnych znajdujących się w strefie nieogrzewanej i nieocieplonej. Ma to wpływ na efektywność pracy systemu zarówno w okresie zimowym, jak i letnim. Chroni powietrze nawiewane przed nadmiernym wychładzaniem zimą i nagrzewaniem latem.

Nieodzownym elementem przy sytuowaniu lokalizacji samej centrali wentylacyjnej, jest również wybór dodatkowego sterownika urządzenia. Zaniechanie temu, znacznie utrudniałoby zarządzanie urządzeniem zlokalizowanym np. na poddaszu. Producenci proponowanych central oferują do swoich rekuperatorów różne typy sterowania. Sterowniki umieszczone na obudowach rekuperatorów, pozwalają na sterowanie wszystkimi parametrami urządzenia, jednak wymagają one każdorazowo podejścia do jednostki. Opcjonalnie każdy z producentów posiada w swojej ofercie dodatkowe sterowniki naścienne, które mogą być montowane w dowolnym pomieszczeniu w budynku. W tym celu należy wcześniej przewidzieć również montaż niezbędnego okablowania od sterownika do rekuperatora. W zależności od producenta, pozwalają one na kontrolowanie intensywności wentylacji, ustawienie programu tygodniowego, podgląd temperatur przed i za wymiennikiem. Niektóre modele posiadają możliwość dokupienia dodatkowych modułów do komunikacji bezprzewodowej, dzięki czemu pracę centrali można obsługiwać przy pomocy smartphona lub tabletu. Dla optymalnego zarządzania systemem wentylacji mechanicznej w budynku jako elementu wchodzącego w skład inteligentnego domu (smart home), nie można również pominąć specjalnego okablowania łączącego centralę wentylacyjną z centralą alarmową budynku, która po „uzbrojeniu” będzie przełączać system na minimalny tryb pracy na czas nieobecności domowników, co pozwoli dodatkowo zaoszczędzić na rachunkach prądu. Należy przy tym pamiętać, że wentylacja ma pracować w sposób ciągły, dla tego też nie należy jej wyłączać całkowicie.

4. Wykonanie instalacji rurowej. Tu jak zostało wskazane poprzednio w zależności od stopnia zaawansowania budowy, instalacje zostaną położone częściowo w stropach lub zostaną ułożone bezpośrednio na nich wraz z wykonaniem odwiertów przez stropy w celu montażu puszek rozprężnych, anemostatów nawiewno- wywiewnych, rozdzielaczy, montażu czerpni i wyrzutni. Na tym etapie co prawda nie ma jeszcze konieczności co do wyboru samej centrali wentylacyjnej, ale zachęcamy do jej wyboru już na etapie podpisania umowy jako całości kompletnej instalacji na którą udzielamy aż 10 lat gwarancji. Co prawda na samą centralę udzielamy gwarancji adekwatnie do wytycznych producenta, ale jako istotna część całości instalacji ma znaczny wpływ na poprawne jej funkcjonowanie bez niepotrzebnych niespodzianek w przyszłości. Należy zaznaczyć, że np. niektóre z nich nie potrzebują zakładania dodatkowych odpływów skondensowanych skroplin, a więc determinują one również konieczność zakładania dodatkowych instalacji, których montaż trudno będzie przewidzieć z góry bez opcji wyboru samej centrali wentylacyjnej. Montaż kanałów wentylacyjnych staramy się zawsze w miarę możliwości prowadzić przez pomieszczenia ogrzewane lub przez pomieszczenia izolowane o temperaturze różniącej się od temperatury powietrza przesyłanego o nie więcej niż o 12°C. W przypadku prowadzenia instalacji wentylacyjnej przez pomieszczenia o znacznie niższej lub znacznie wyższej temperaturze, zakładamy na rury specjalne rękawy izolacyjne.

5. Montaż centrali wentylacyjnej (rekuperatora) wraz z pomiarami i regulacją. Ten etap przypada, kiedy już wszystkie brudne prace zwłaszcza te „pylące” w budynku dobiegną końca. Jako że współpracujemy z większością uznanych producentów wszystkich marek rekuperatorów na Świecie, jesteśmy w stanie praktycznie dostarczyć każdy model rekuperatora takich marek jak: Zehnder, Aeris, Samsung, LG, Pro-Vent, Vanas, ThesslaGreen, RENSON, reQnet, Ventilus, Vaillant, Chigo, ecocomfort, ONYX. Dotychczasowa praktyka zawodowa, skłania nas do zaproponowania central dwóch polskich producentów, które sprawują się niezawodnie a na tle cenowym plasują się zdecydowanie w czołówce. Konkretnych szczegółów udzielamy już w pełnej ofercie po przedłożeniu projektu przez Inwestora.